14619 Jetty Ln, Delray Beach, FL 33446
Toggle Navigation
Images
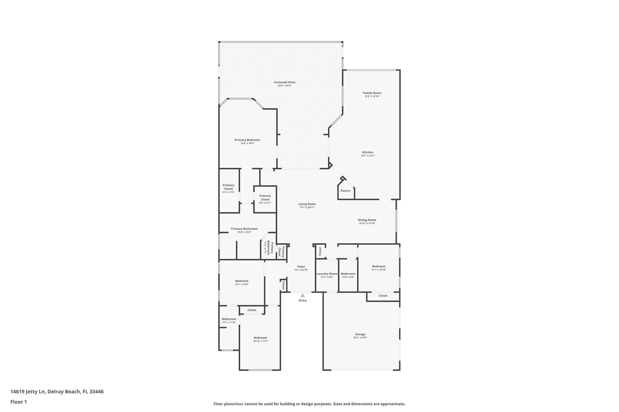
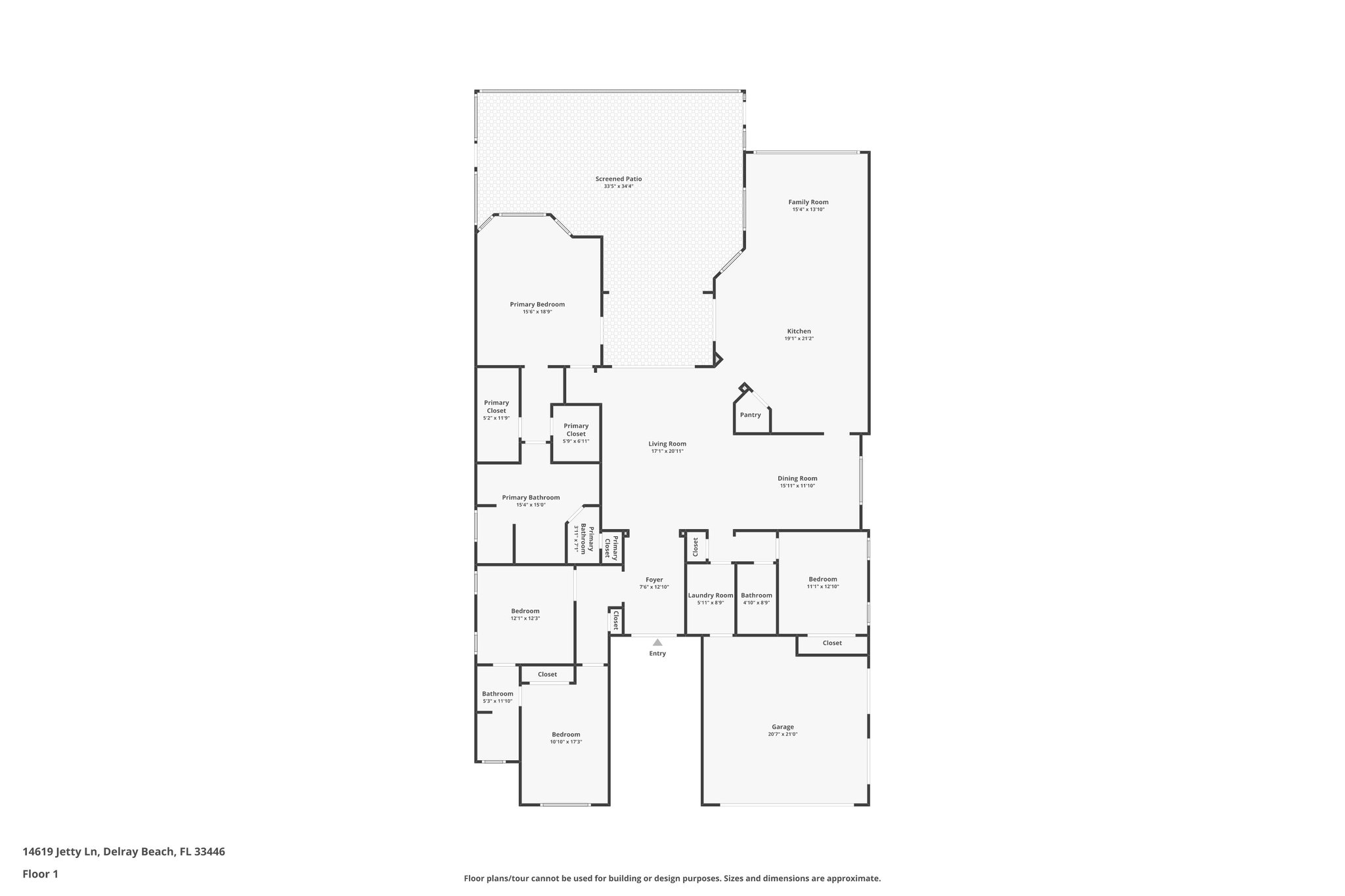
Floor Plans
3D Tour
Map
14619 Jetty Ln
Delray Beach, FL 33446
Scroll to Content
Images
Slideshow
Photo Grid
Hide
Previous
Next
Show more
Floor Plans
Slideshow
Photo Grid
Hide
Previous
Next
3D Tour