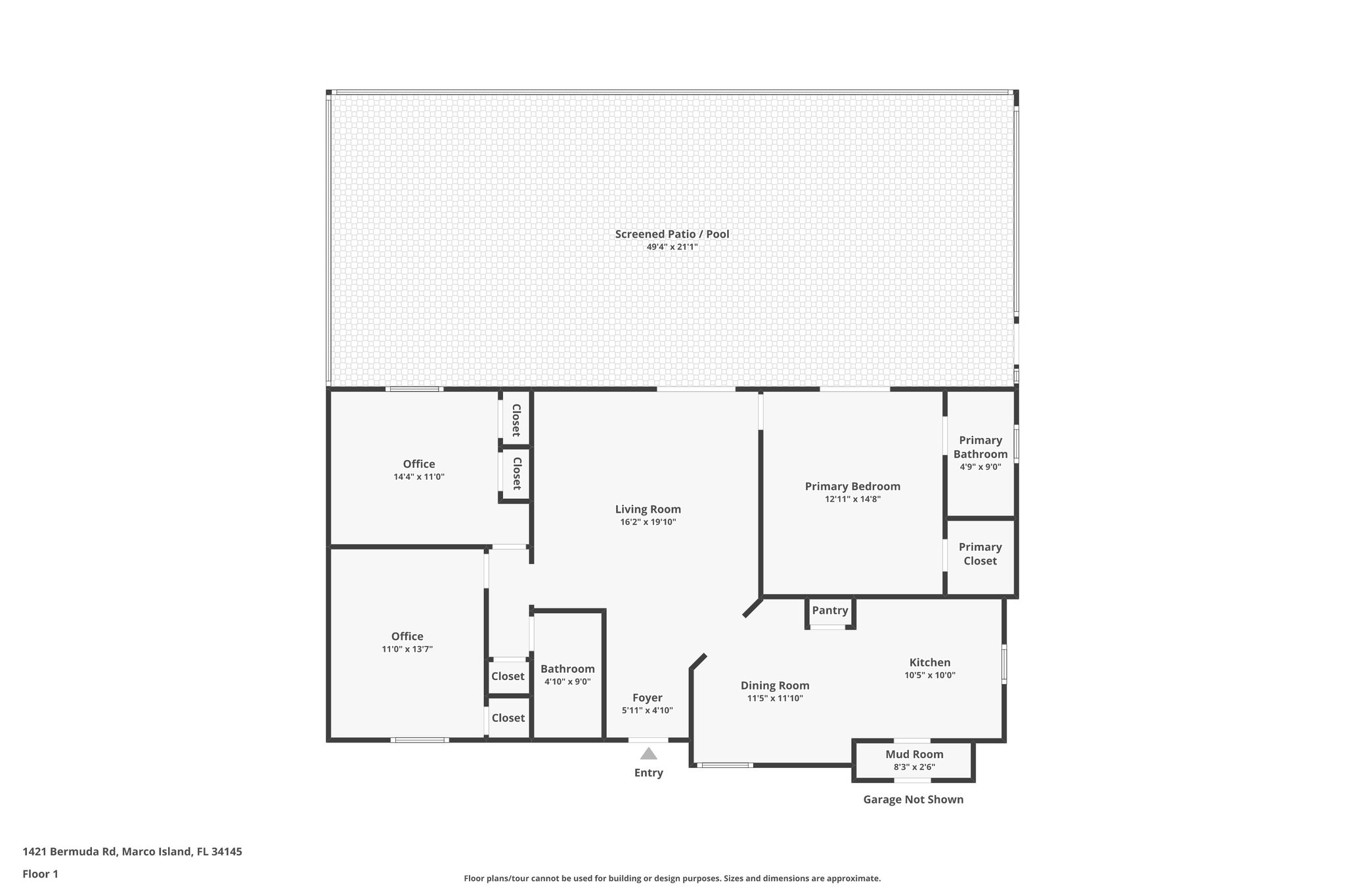
1421 Bermuda Rd, Marco Island, FL 34145
Toggle Navigation
Images
Floor Plans
3D Tour
Map
1421 Bermuda Rd
Marco Island, FL 34145
Scroll to Content
Images
Slideshow
Photo Grid
Hide
Previous
Next
Show more
Floor Plans
Slideshow
Photo Grid
Hide
Previous
Next
3D Tour