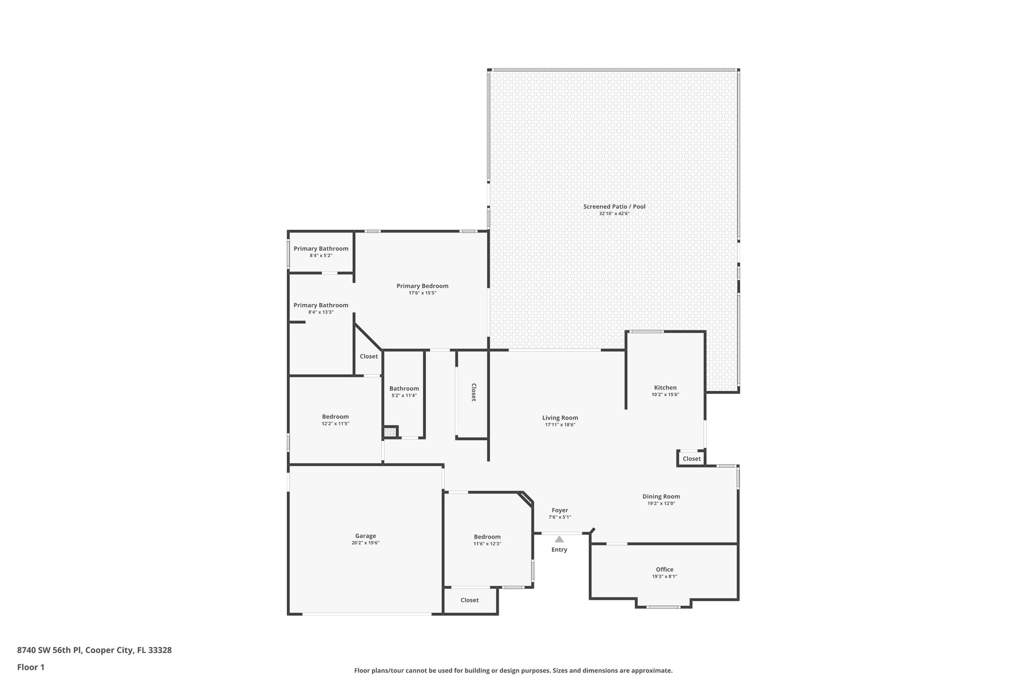
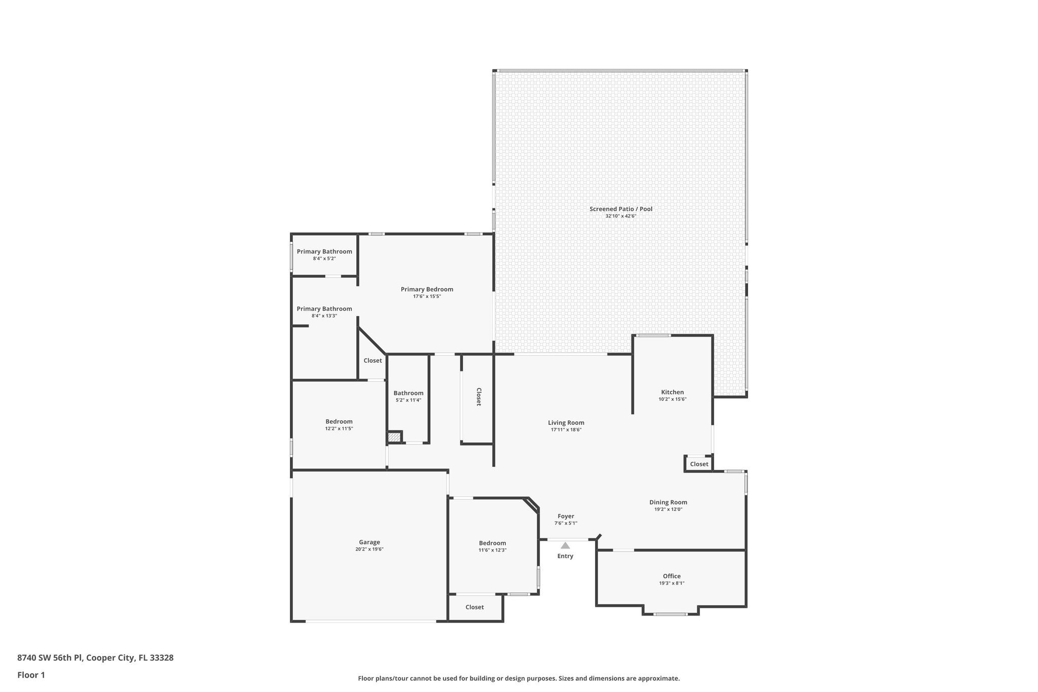
8740 SW 56th Pl, Cooper City, FL 33328
Toggle Navigation
Images
Floor Plans
3D Tour
Map
8740 SW 56th Pl
Cooper City, FL 33328
Scroll to Content
Images
Slideshow
Photo Grid
Hide
Previous
Next
Show more
Floor Plans
Slideshow
Photo Grid
Hide
Previous
Next
3D Tour