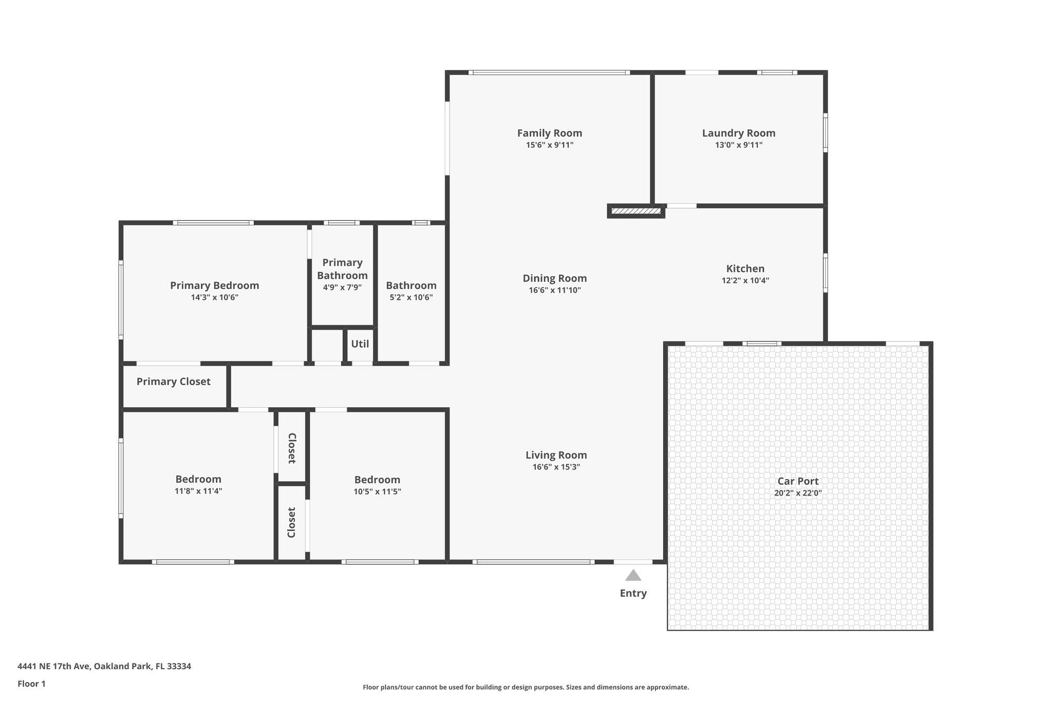
4441 NE 17th Ave, Oakland Park, FL 33334
Toggle Navigation
Images
Floor Plans
3D Tour
Map
4441 NE 17th Ave
Oakland Park, FL 33334
Scroll to Content
Images
Slideshow
Photo Grid
Hide
Previous
Next
Show more
Floor Plans
Slideshow
Photo Grid
Hide
Previous
Next
3D Tour