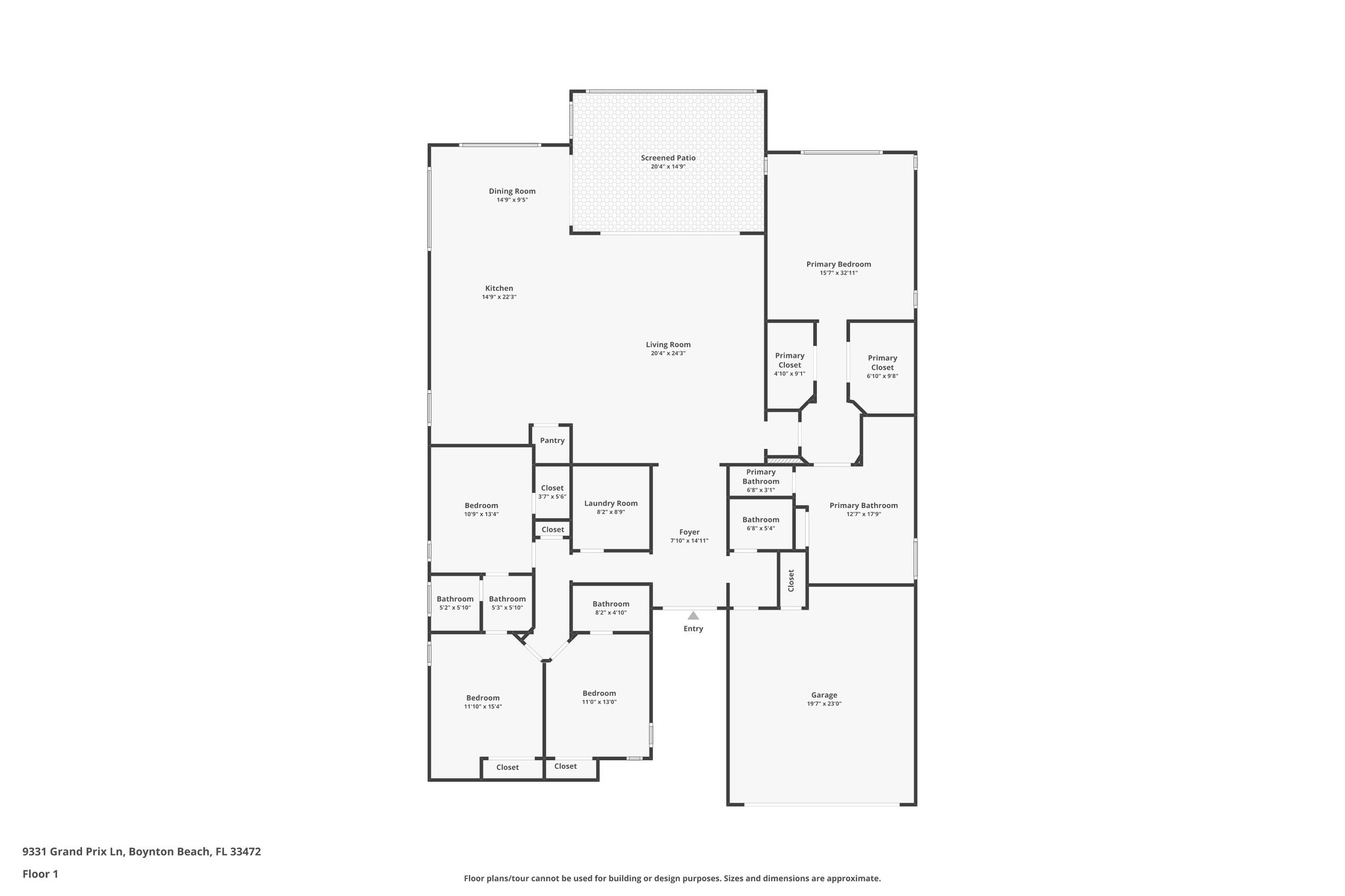
9331 Grand Prix Ln, Boynton Beach, FL 33472
Toggle Navigation
Images
Floor Plans
3D Tour
Map
9331 Grand Prix Ln
Boynton Beach, FL 33472
Scroll to Content
Images
Slideshow
Photo Grid
Hide
Previous
Next
Show more
Floor Plans
Slideshow
Photo Grid
Hide
Previous
Next
3D Tour