6189 Petunia Rd, Delray Beach, FL 33484
Toggle Navigation
Images
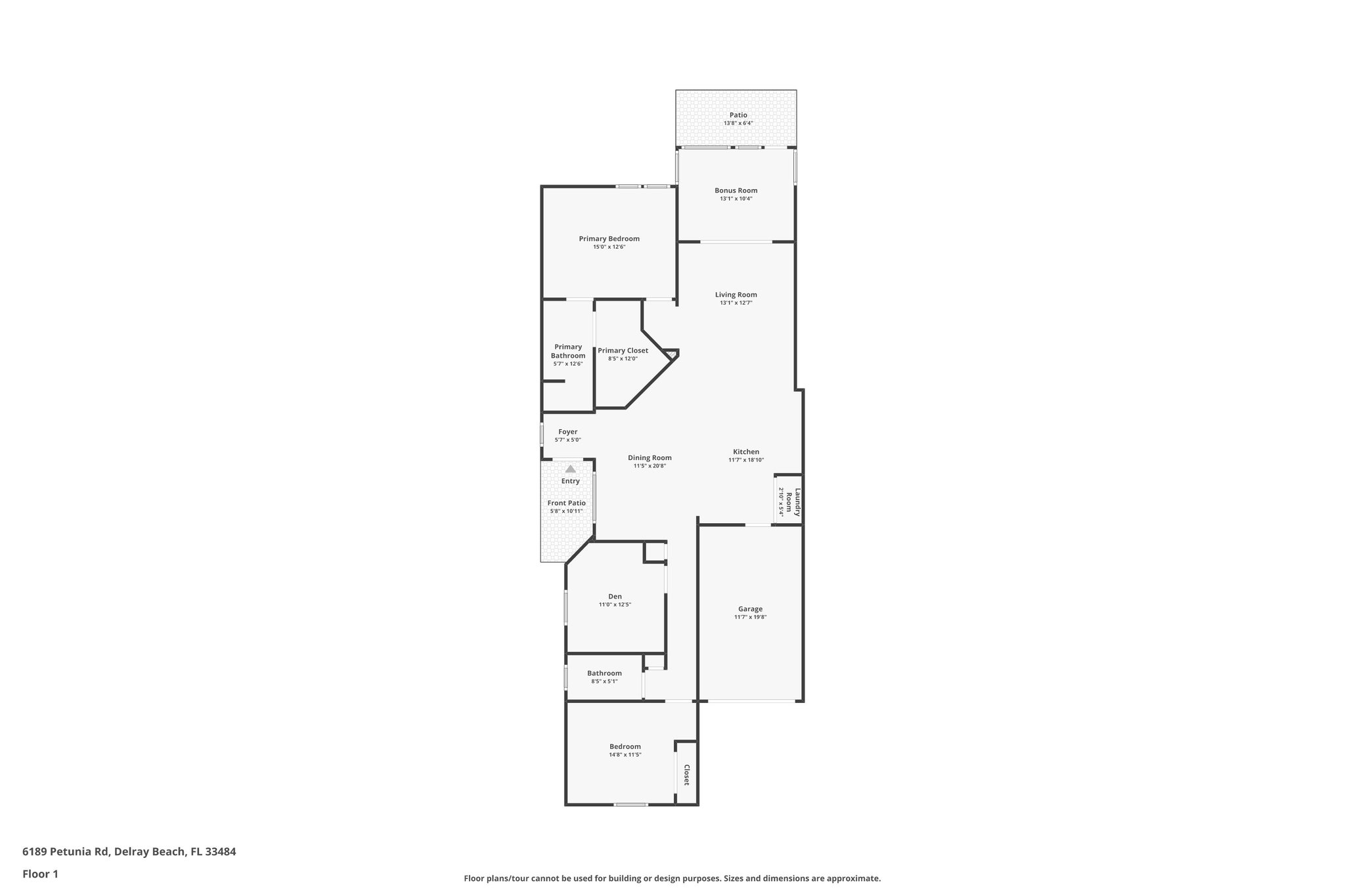
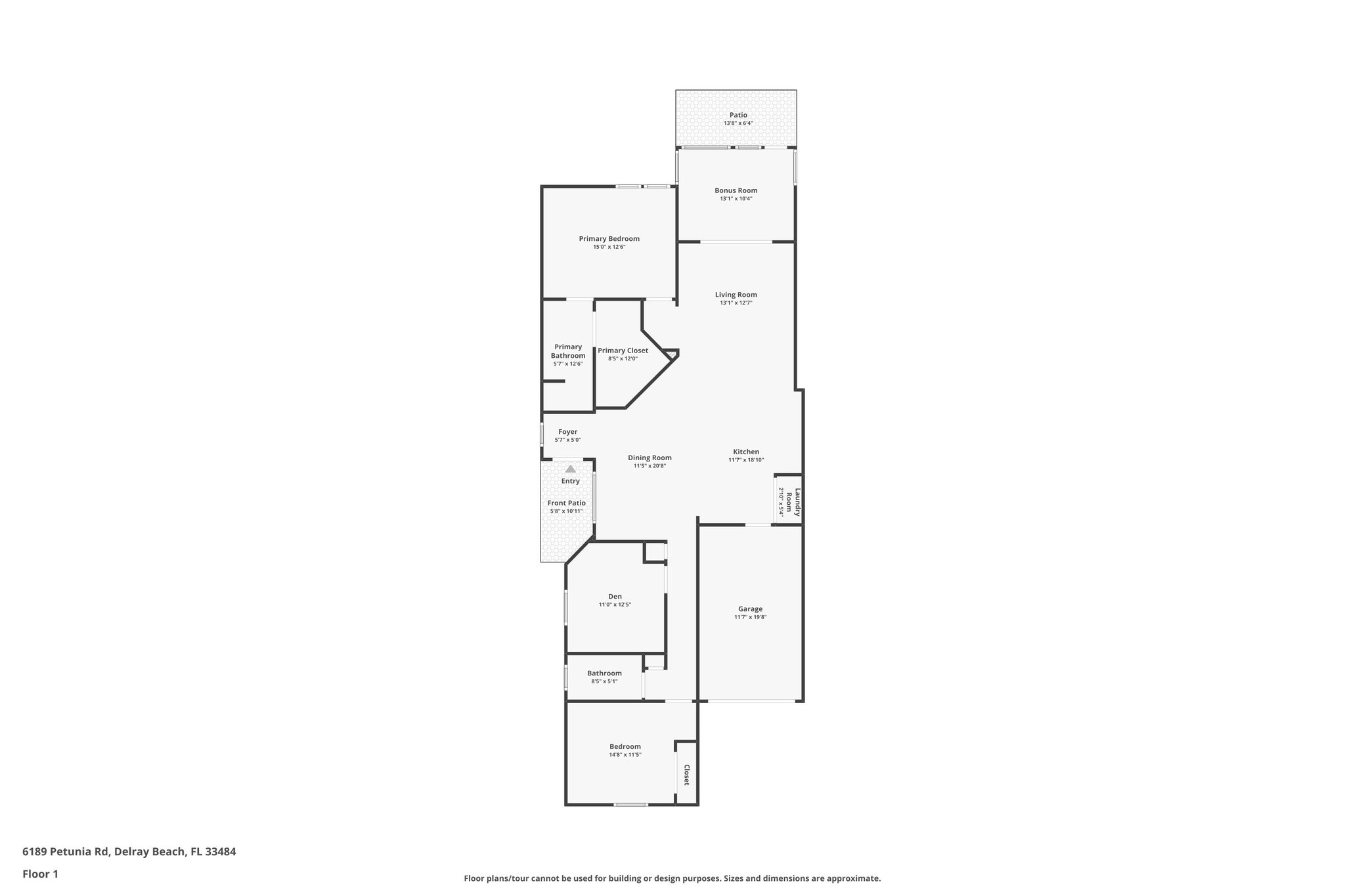
Floor Plans
3D Tour
Map
6189 Petunia Rd
Delray Beach, FL 33484
Scroll to Content
Images
Slideshow
Photo Grid
Hide
Previous
Next
Show more
Floor Plans
Slideshow
Photo Grid
Hide
Previous
Next
3D Tour