201 NE 6th St, Boca Raton, FL 33432
Toggle Navigation
Images
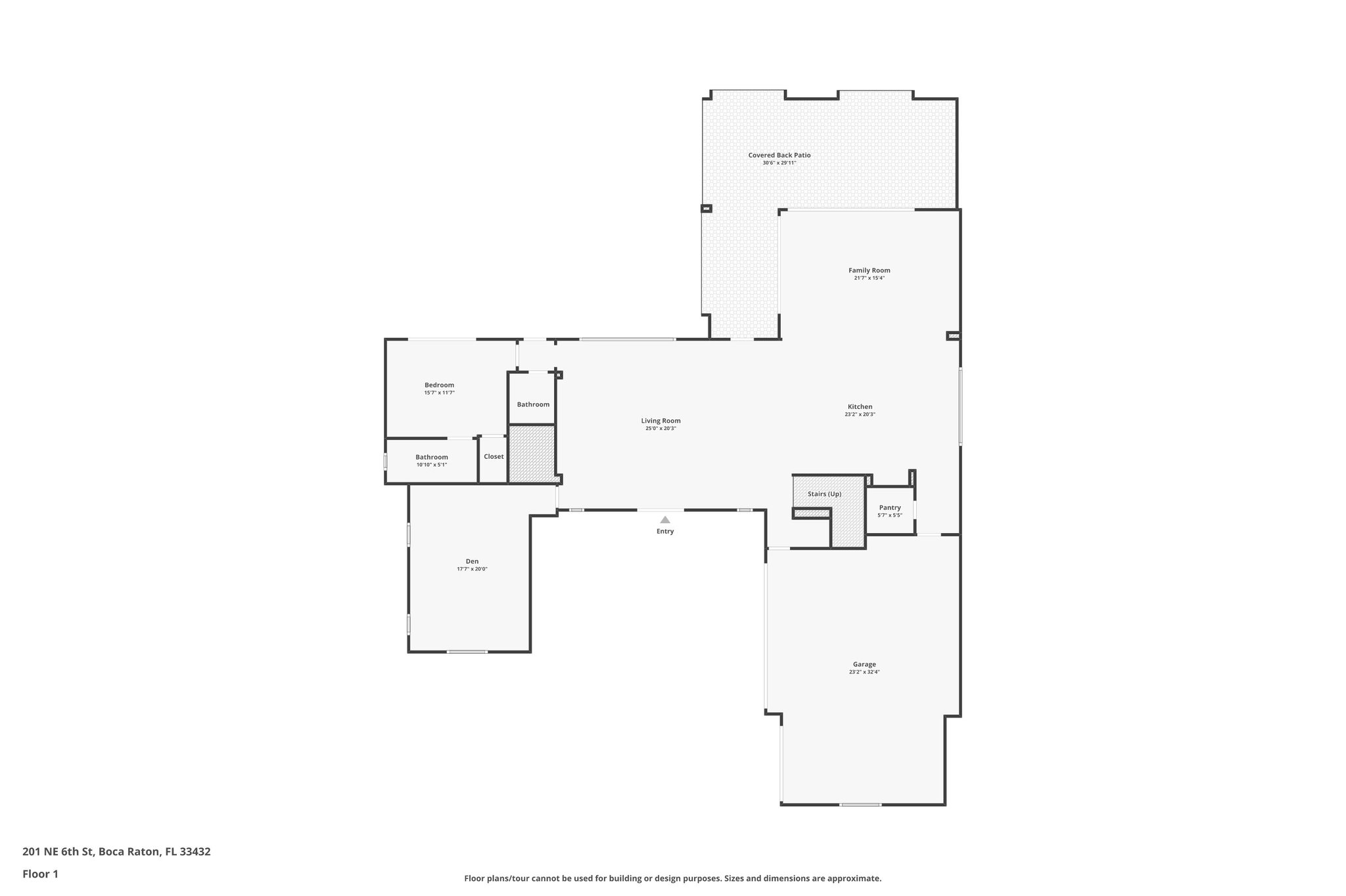
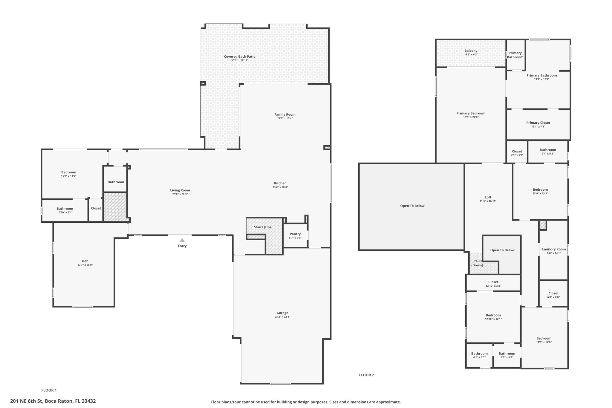
Floor Plans
3D Tour
Map
201 NE 6th St
Boca Raton, FL 33432
Scroll to Content
Images
Slideshow
Photo Grid
Hide
Previous
Next
Show more
Floor Plans
Slideshow
Photo Grid
Hide
Previous
Next
3D Tour