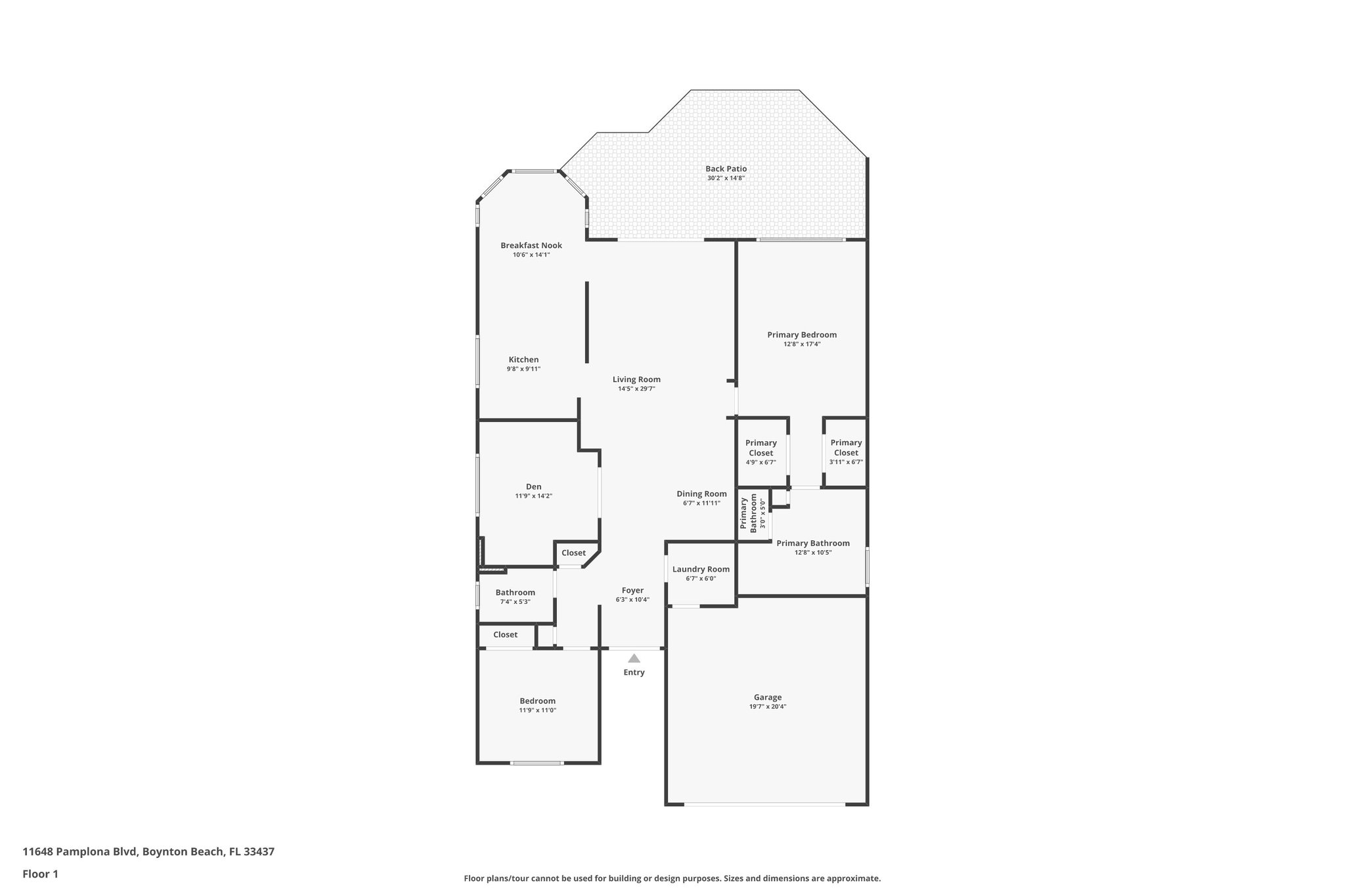
11648 Pamplona Blvd, Boynton Beach, FL 33437
Toggle Navigation
Images
Floor Plans
3D Tour
Map
11648 Pamplona Blvd
Boynton Beach, FL 33437
Scroll to Content
Images
Slideshow
Photo Grid
Hide
Previous
Next
Show more
Floor Plans
Slideshow
Photo Grid
Hide
Previous
Next
3D Tour