4103 NW 38th Pl, Cape Coral, FL 33993
Toggle Navigation
Images
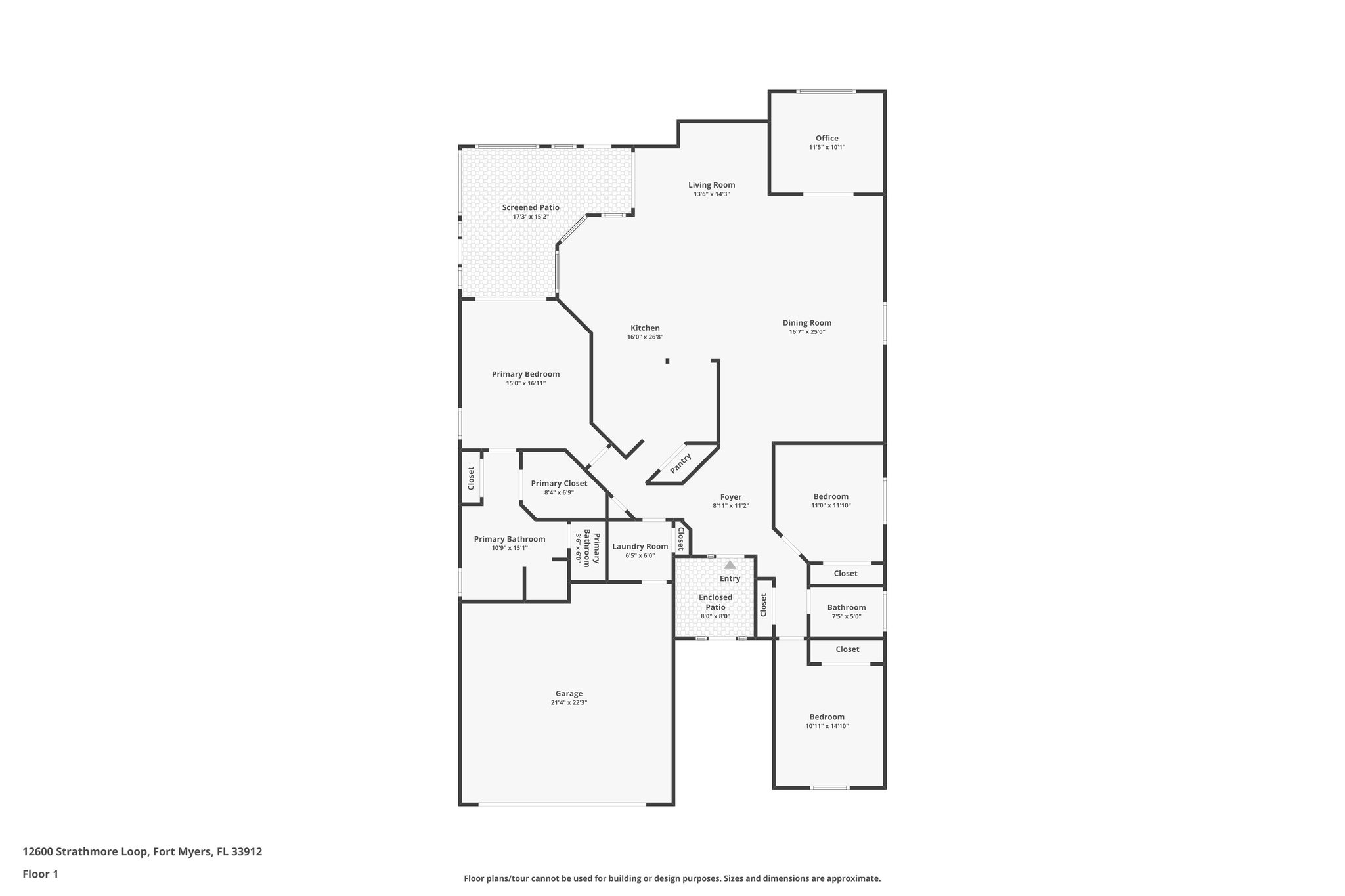
Floor Plans
3D Tour
Map
4103 NW 38th Pl
Cape Coral, FL 33993
Scroll to Content
Images
Slideshow
Photo Grid
Hide
Previous
Next
Show more
Floor Plans
Slideshow
Photo Grid
Hide
Previous
Next
3D Tour