6888 Myakka Valley Trail, Sarasota, FL 34241
Toggle Navigation
Images
Videos
Floor Plans
3D Tour
Map
6888 Myakka Valley Trail
Sarasota, FL 34241
Scroll to Content
Images
Slideshow
Photo Grid
Hide
Previous
Next
Show more
Videos
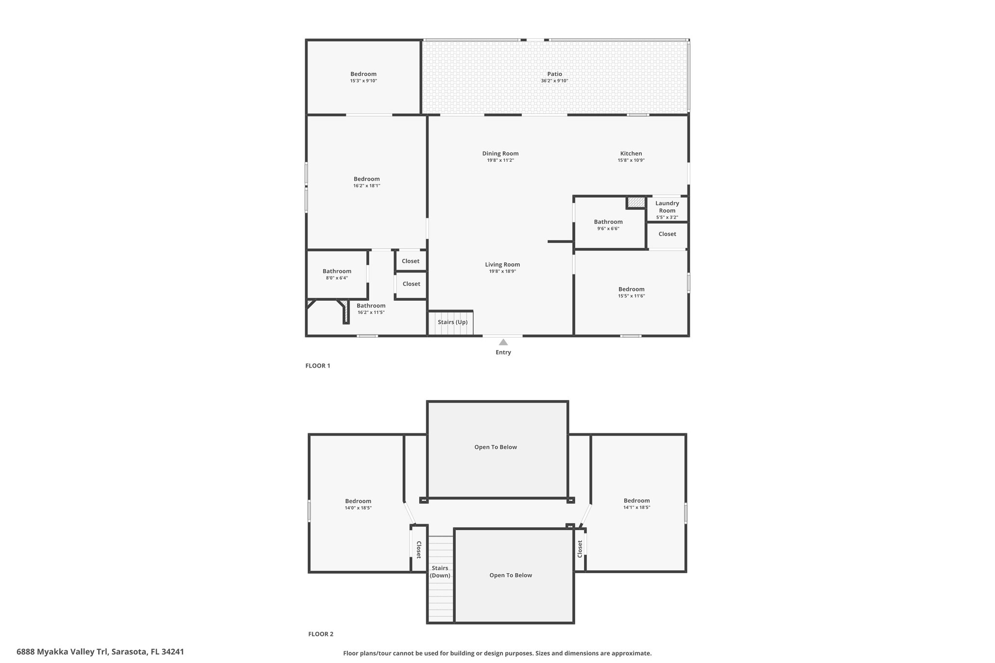
Floor Plans
Slideshow
Photo Grid
Hide
Previous
Next
3D Tour