7873 Royal Lace Terrace, Wellington, FL 33467
Toggle Navigation
Images
Floor Plans
3D Tour
Map
7873 Royal Lace Terrace
Wellington, FL 33467
Scroll to Content
Images
Slideshow
Photo Grid
Hide
Previous
Next
Show more
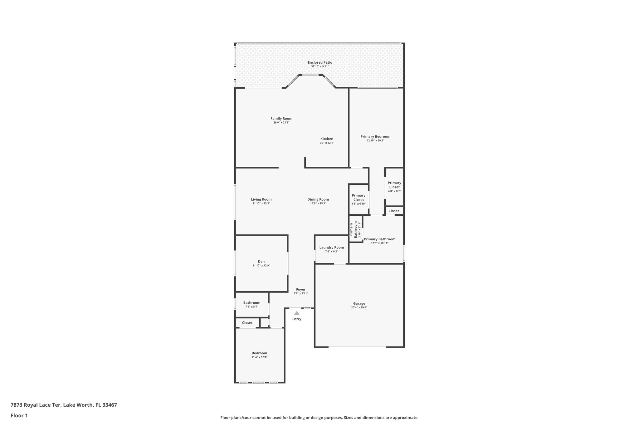
Floor Plans
Slideshow
Photo Grid
Hide
Previous
Next
3D Tour