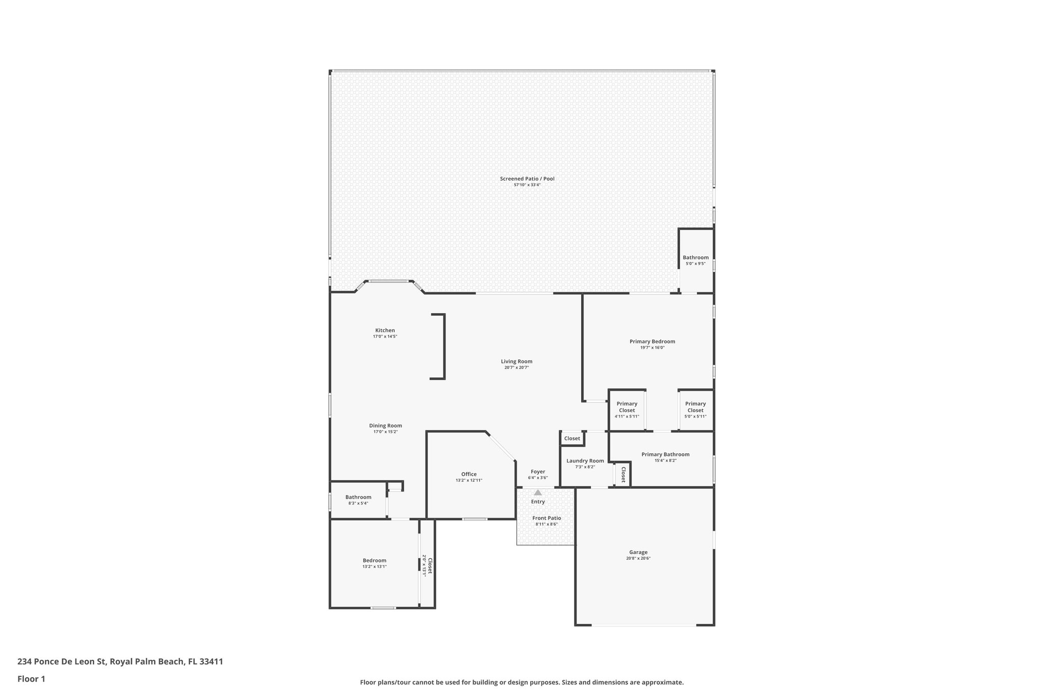
234 Ponce De Leon St, Royal Palm Beach, FL 33411
Toggle Navigation
Images
Floor Plans
3D Tour
Map
234 Ponce De Leon St
Royal Palm Beach, FL 33411
Scroll to Content
Images
Slideshow
Photo Grid
Hide
Previous
Next
Show more
Floor Plans
Slideshow
Photo Grid
Hide
Previous
Next
3D Tour